Vistas:1513 Autor:MAMA DE ACERO Hora de publicación: 2022-08-10 Origen:Ridge Cap Hat Sheet cold roll forming machine
¿Qué es una tapa de cumbrera? ¿Cuál es el propósito de la tapa de la cumbrera?
La cumbrera es una teja especial que fue diseñada para el fuerte viento que golpea la cumbrera de un techo.Una cumbrera no solo será más gruesa que una teja regular, sino que también está predoblada.Un techador barato intentará usar tejas de 3 lengüetas que se agrietarán con el tiempo debido a la curvatura.
Las tapas de cumbrera de techo de metal bloquean las corrientes de aire, la lluvia y las plagas
Cada techo (excepto un techo plano) tiene una cumbrera y muchos techos en realidad tienen múltiples cumbreras.Para proteger su techo y su hogar, las cumbreras se utilizan para permitir que el aire fluya a través del ático, al mismo tiempo que protegen su hogar.
Las cumbreras son el paso más importante para encerrar una estructura de techo de metal.Corriendo sobre el techo o la cumbrera, las tapas de la cumbrera del techo de metal unen los dos paneles de techo de metal contiguos a cada lado de la junta del techo y ocultan los sistemas continuos de ventilación de la cumbrera.Las cumbreras de metal de calidad inferior, o las cumbreras mal instaladas, crean un mal sellado contra la intemperie sobre el techo y complicaciones para el propietario de la casa o el negocio.
¿Beneficios de usar un sombrero o cumbreras de metal de alto perfil?
Este tipo de cumbrera elimina todos los problemas que presenta una cumbrera plana y permite un flujo de aire más eficiente a través de la ventilación de la cumbrera.
Las cumbreras metálicas para techos están hechas del mismo metal, calibre, resistencia a la tracción y color que los paneles para techos.Producidas por el mismo sistema que crea la forma de los paneles para techos, estas cumbreras se forman para dar forma al contorno del producto de metal.
Las cumbreras encajan firmemente con los paneles metálicos para techos y se unen de metal a metal con tornillos autorroscantes.La aplicación de sellador de cinta de alta calidad proporciona una barrera resistente al agua entre la cumbrera y los paneles de metal.El resultado final es una estructura de metal atractiva con un techo de metal herméticamente sellado y una estructura con años de servicio sin problemas.
¿Qué materiales se pueden utilizar para una cumbrera?
Las cumbreras de techo de metal se pueden fabricar con una variedad de materiales, incluidos aluminio, hierro y cobre.Estos materiales se pueden pintar o tratar para que combinen en color y estilo con el resto de su techado.
En resumen, para instalar las tejas de la cumbrera, simplemente sepárelas donde están perforadas, 'dóblelas' sobre el pico y fíjelas con clavos.
¿Cuál es el tamaño de la tapa de la cumbrera?
diez pies a doce pies de largo
Las longitudes estándar para la cumbrera del techo de metal son de diez a doce pies de largo.Si está superponiendo tapajuntas de cumbrera, tenga una superposición de 6 pulgadas.El ancho más común de una cumbrera es 7'X7' o 10'X10' y está disponible con o sin dobladillo.
¿Cuánto cuesta una tapa de cumbrera?
El costo real de una cumbrera de techo es de $15 a $50 en promedio.
¿Qué es una máquina perfiladora de cumbreras?
la serie de Máquinas perfiladoras de cumbreras se utilizan principalmente para hacer cumbreras.
El remate de cumbrera enrollable es un producto enrollado que se fabrica con dimensiones específicas y se corta a las longitudes solicitadas.Fabricamos máquinas perfiladoras de cumbreras de tamaño estándar y máquinas perfiladoras personalizadas.
Más video de la máquina formadora de rollos de cumbrera→
Características y ventajas de la máquina perfiladora de cumbreras
Capaz de producir cumbrera bajo producción en masa con diferentes tamaños y especificaciones.
Tiene opciones de velocidad de trabajo que van desde 15m a 30m/min.
Materia prima adecuada para la máquina formadora de rollos Ridge Cap
Tipo de material: Acero revestido de color, Chapa de aluminio
Grosor: 0,3-0,6 (mm)
Límite elástico: 230-300/350 (MPa) opcional
Ancho: 385 (mm) según solicitudes de perfil
Línea de producción Componentes y parámetros de Máquina formadora de rollos de cumbrera
1. Decoiler: 2t/3t/5t Motor/motor hidráulico/pasivo (opcional)
2. Dispositivo de cobertura de filmación: opcional
3. Cizalla frontal opcional: opcional
4. Dispositivo de lubricación: no es necesario
5. Sistema de perfilado: 15/20/30 m/min.
6. Cubierta de seguridad opcional: opcional
7. Post corte: Motor/hidráulico (opcional)
8. Sistema de salida: Soporte manual/ Apilador automático (opcional)
9. Sistema hidráulico:Fuente de alimentación para desbobinador/sistema de post-corte
10. Sistema de control eléctrico: MITSUBISH/ SIEMENSE/AMS (opcional o según lo solicitado)
Flujo de trabajo de la máquina formadora de rollos de tapado de cumbrera
El flujo de trabajo general de la máquina para tapar cumbreras de techos metálicos es el siguiente
Carro de carga de bobinas (opcional) Desenrollador (pasivo/automático) - Cizalla frontal (opcional) - Mesa de alimentación y guía - Cubierta de filmación (opcional) - Sistema de formación de rollos - Unidad de punzonado escalonado (según lo solicite el perfil) - Post-corte a medida (hidráulico /Motor) - Partidario manual de salida/Stackmaster (opcional)
Aplicación de la máquina formadora de rollos Ridge Cap
Las cumbreras para techos producidas con esta maquinaria se utilizan para una variedad de construcciones de estructuras de acero ligeras y grandes proyectos de construcción.
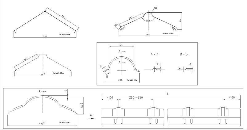
Perfil de cumbrera
Tapas de cumbrera terminadas por la máquina formadora de rollos de tapa de cumbrera
Más máquina perfiladora de cumbreras→
Más información sobre la máquina perfiladora de cumbreras→
Acerca de Steelmama
STEELMAMA se fundó en 2009. Desde sus inicios, STEELMAMA siempre ha defendido la visión de 'crear una empresa de primera clase, talentos de primera clase, contribución de primera clase', para crear una conocida marca 'STEELMAMA'.
El negocio principal de STEELMAMA es 'proyectar' como el tema de 'SERVICIO DE AGENTE DE ACERO DE CHINA', los productos líderes para maquinaria de perfil de acero incluyen máquina formadora de rollos, dobladora de frenos de prensa y otra maquinaria de procesamiento de acero, y bobina de acero incluyen bobina PPGI, bobina GI, bobina de aluminio, bobina Alu-zinc y tiras y placas de acero, también material de construcción de acero como láminas de metal para techos, secciones de correas, acero H, tubo de soldadura y algunos accesorios para ser una marca global.
Diseñamos y fabricamos una amplia gama de buenas soluciones y productos para empresas que operan en las industrias del metal, la construcción y la fabricación.
Nuestro objetivo es proporcionar máquinas flexibles con buena facilidad de uso y alta calidad, donde nuestros diseños y soluciones brinden a los clientes beneficios y experiencias únicas.
Su éxito es nuestro éxito
![]() | CONTACTO NOSOTROS Teléfono:+86 17761555057 Correo electrónico:arno@steelmama.com |
